375 Feathertop Way Lot# 34 Big White, British Columbia V1P 1T4
$1,750,000Maintenance, Property Management, Other, See Remarks
$106.01 Monthly
Maintenance, Property Management, Other, See Remarks
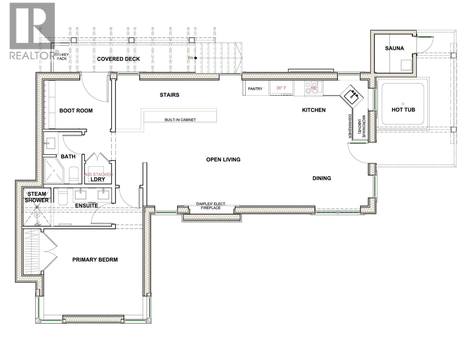
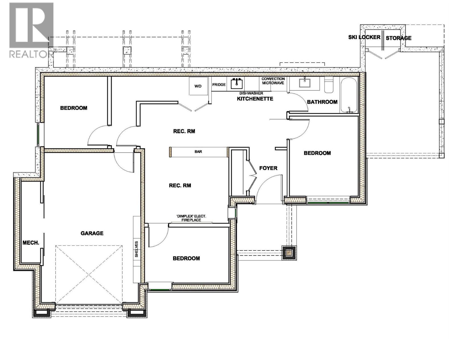
$106.01 MonthlyWelcome to 375 Feathertop Way located in the desirable Feathertop Estates. Enjoy true ski-in/ski-out convenience directly from your private ski locker, complete with a ski key rack, and quick access to The Bullet and Black Forest chairlifts. This home showcases 8” thick, heavily insulated exterior walls, triple-glazed European tilt-and-turn windows, and three-point latch European exterior doors, creating an airtight, energy-efficient envelope ideal for mountain conditions. Premium appliances throughout, including Bosch refrigerators and dishwashers on both upper and lower levels, a Bosch induction range in the upper kitchen, and a Bosch convection microwave in the lower kitchenette. The lower-level lock-off suite offers its own laundry and kitchenette, providing excellent flexibility for guests or potential rental income. Energy efficiency continues with LED lighting throughout, a Zehnder high-efficiency heat exchanger, and Dimplex electric baseboard and forced-air heating, each room equipped with individual remote-controlled thermostats. After a day on the slopes, relax by either electric fireplace or unwind in the spa-inspired amenities, including instant hot water at all sinks, an ensuite PRO-240 auto-flush steam generator, Jacuzzi J-345 hot tub with remote control, and a private sauna, also remotely controlled. This exceptional home is ideal for full-time living or a luxurious Big White retreat. (id:37990)
Property Details
| MLS® Number | 10371376 |
| Property Type | Single Family |
| Neigbourhood | Big White |
| Community Name | Feathertop |
| Community Features | Pets Allowed |
| Parking Space Total | 2 |
| Storage Type | Storage, Locker |
Building
| Bathroom Total | 3 |
| Bedrooms Total | 4 |
| Appliances | Refrigerator, Dishwasher, Range - Electric, Microwave, Washer/dryer Stack-up |
| Constructed Date | 2019 |
| Construction Style Attachment | Detached |
| Fireplace Fuel | Electric |
| Fireplace Present | Yes |
| Fireplace Total | 2 |
| Fireplace Type | Unknown |
| Heating Fuel | Electric |
| Stories Total | 2 |
| Size Interior | 1,862 Sqft |
| Type | House |
| Utility Water | Private Utility |
Parking
| Carport | |
| Attached Garage | 1 |
Land
| Acreage | No |
| Sewer | Municipal Sewage System |
| Size Irregular | 0.08 |
| Size Total | 0.08 Ac|under 1 Acre |
| Size Total Text | 0.08 Ac|under 1 Acre |
Rooms
| Level | Type | Length | Width | Dimensions |
|---|---|---|---|---|
| Second Level | Primary Bedroom | 13' x 11'4'' | ||
| Second Level | Living Room | 12'5'' x 16' | ||
| Second Level | Dining Room | 8'7'' x 13'1'' | ||
| Second Level | Sauna | 5'1'' x 5'1'' | ||
| Second Level | Full Ensuite Bathroom | 11'7'' x 5'1'' | ||
| Second Level | Full Bathroom | 6'10'' x 5' | ||
| Second Level | Mud Room | 8'11'' x 6'5'' | ||
| Second Level | Kitchen | 7'11'' x 13'1'' | ||
| Main Level | Bedroom | 8'7'' x 9'9'' | ||
| Main Level | Bedroom | 9'4'' x 10'9'' | ||
| Main Level | Foyer | 5'1'' x 7'1'' | ||
| Main Level | Family Room | 16'2'' x 11'4'' | ||
| Main Level | Bedroom | 11'4'' x 7'6'' | ||
| Main Level | Full Bathroom | 9'4'' x 5' | ||
| Additional Accommodation | Kitchen | 10'2'' x 9'7'' |
https://www.realtor.ca/real-estate/29203952/375-feathertop-way-lot-34-big-white-big-white
Contact Us
Contact us for more information







































